『シャーウッド箕面展示場』にて、「自宅サウナがある生活」を提案
北欧産サウナ製品の輸入・販売を展開するtotonou Japan株式会社(本社:東京都渋谷区、代表:齋藤アレックス剛太、以下「totonoü(ととのう)」)は、積水ハウス株式会社大阪北支店(支店:大阪府箕面市、以下「積水ハウス大阪北支店」)が運営する住宅展示場にて、totonoüの自宅用キャビンサウナ製品『Auroom Cala Glass(オールーム カラグラス)』が導入されたことを発表します。
今後もtotonoüは、北欧に拠点を置く中で得た知見や事例をもとに、家庭用・事業用両面のサウナ製品の輸入・販売事業を推進し、日本における「サウナと共にある暮らし」の実現を目指してまいります。

陽だまりに包まれる大開口の住宅展示場 サウナと暮らしが自然に繋がる動線に
今回サウナを導入いただいたのは、積水ハウス大阪北支店運営の最新住宅展示場『シャーウッド箕面展示場』(以下「本展示場」)です。

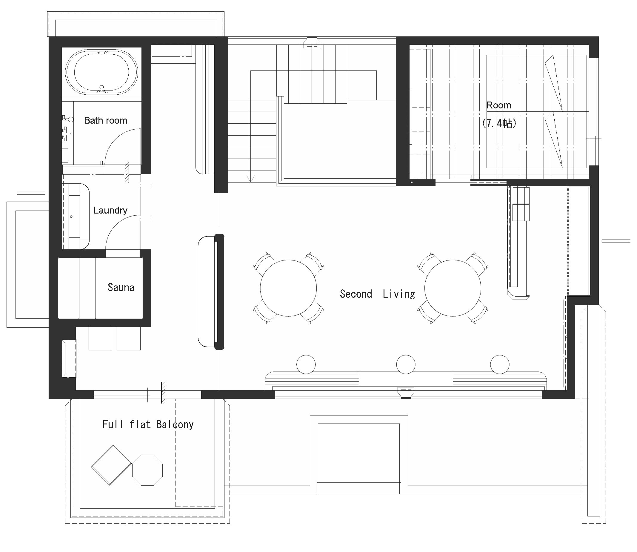
エントランスを抜けた先に広がるのは、33.9帖の広々としたLDK。大開口から光がたっぷりと差し込むこの空間には、自然に家族が集まる仕掛けが散りばめられています。

家族が集まったり、時には来客を招いたりと、様々な交流を育むのに最適な、ゆとりのあるリビングとデッキテラス。
また、キッチンからリビングとデッキテラスを見渡せるつくりとなっているため、料理をしながらも家族を見守ることができる心地良い位置関係となっているのも魅力です。

サウナは本展示場の2階に配置されています。サウナの扉を開けると目の前にバスルーム、すぐそばにはバルコニーがあり、サウナ・水風呂・外気浴という『サウナを満喫するための動線』や、サウナ浴後に2階ラウンジでくつろぐなど『自宅にサウナがある生活』を具体的にイメージしやすい間取りとなっています。

ガラスと木が調和する北欧産キャビンサウナ ロウリュも可能な本格仕様
本展示場に導入いただいたのは、totonoüの人気モデル『Auroom Cala Glass』です。2~3人でゆったりと入れるサイズの屋内用サウナで、家族や友人との会話を愉しみながらくつろぐことができます。

*展示されているサウナには電源が設定されていないため、本製品を実際に使用・体験していただくことはできません。
ガラスと木が調和した北欧ならではのミニマルでスタイリッシュなデザインの本製品は、モノトーンや木目を基調とした内装やインテリアにも馴染みやすいのが特長。
ガラス面に耐熱強化ガラスを使用することで、熱を逃がさず、機能性とデザイン性の両立を実現しており、最高温度は110度、ロウリュも可能な本格仕様となっています。
また、木材には『サーモ加工』を施した北欧産のサウナ用A級木材を採用しています。木材を約200度の高温で24時間加熱して含水率を下げる北欧発の技術『サーモ加工』により、木材の安定性が向上するため、耐用年数が長くなると共に、ヒノキやスギなどのサーモ加工を施していない木材と比較して汚れや汗じみにも強くなります。
なお、本展示場に導入いただいたサウナをはじめ、totonoüのキャビンサウナ製品シリーズは、日本の電気用品安全法(PSE)に適合しています。電気サウナストーブにおいて『サウナバス用電熱器』のPSEマークを取得しているだけでなく、サウナ本体についてもPSEマークを取得した『電気サウナバス技術適合品』です。
ストーブには室内温度センサー及び本体温度センサーが搭載され、基準温度以上になると自動的に電源が落ちるようになっているほか、万が一サウナ浴中に体調が悪くなった場合には体重をかけて外に出られるようにサウナ本体のドアが外開きに設計されているなど、安全性にも配慮しています。

今後もtotonoüは、北欧に拠点を置く中で得た知見や事例をもとに、家庭用・事業用両面のサウナ製品の輸入・販売事業を推進し、日本における「サウナと共にある暮らし」の実現を目指してまいります。
本件に関するコメント
積水ハウス株式会社大阪北支店 ご担当者様
今回、『シャーウッド箕面展示場』において自宅用サウナを導入したのは、「住まいは人生の質を高める基盤である」という当社の考えを、より具体的に体感いただきたいと考えたからです。
近年、健康や心の充足といったウェルビーイングへの関心が高まる中、サウナは日々の疲れを癒し、心身をリセットする時間として注目されています。
本展示場では、LDKやテラスと同様に、サウナを特別な設備ではなく暮らしの延長線上に自然に組み込み、家族それぞれが自分らしい時間を過ごせる住まいのあり方を表現しました。
日常の中で“ととのう時間”を享受できる、新しい住空間の価値を感じていただければ幸いです。
今後も積水ハウスは、時代の価値観やライフスタイルの変化に寄り添いながら、心身ともに豊かに過ごせる住まいづくりを追求してまいります。
totonou Japan株式会社 代表取締役 齋藤アレックス剛太
このたび、積水ハウス大阪北支店様の最新住宅展示場『シャーウッド箕面展示場』にて、totonoüの自宅用サウナ製品『Auroom Cala Glass』を導入いただけたことを、大変光栄に思います。
住宅展示場は、単に家そのものを見る場ではなく、これから先何十年にもわたる暮らし方や、家族の日常のあり方を思い描く場だと考えています。だからこそ、その空間の中で「自宅にサウナがある生活」を具体的に提案できることには、大きな意義があると感じています。
我々が拠点を置く北欧において、サウナは日々の疲れを癒やし、心身を整えるだけでなく、家族との時間や自分自身と向き合う時間を豊かにする存在です。本展示場を通じて、多くの方にウェルビーイングにあふれる暮らしを具体的に想像していただき、自宅サウナがこれからの住まいの選択肢の一つとして広がっていくことを願っています。
今後もtotonoüは、北欧に拠点を置く中で得た知見や事例をもとに、家庭用・事業用の両面でサウナ製品の輸入・販売事業を推進し、日本における「サウナと共にある暮らし」の実現を目指してまいります。
『シャーウッド箕面展示場』について
-
所在地:〒562-0033 箕面市今宮1丁目1番1号(ABCハウジングウェルビーみのお内43号地)
-
電話番号:072-768-8015
-
受付時間:10:00~18:00
-
定休日:なし(随時WEB予約受付中)
-
アクセス情報
-
電車・路線バスでお越しの方
-
北大阪急行「箕面萱野」駅から徒歩8分
-
阪急「箕面」駅から阪急バス「箕面萱野駅」停留所下車
-
JR「茨木」駅・阪急「石橋阪大前」駅から阪急バス「今宮」「西宿」停留所下車
-
-
車でお越しの方
-
国道171号線、423号線「萱野」交差点から約500m
-
-
積水ハウス大阪北支店について
-
所在地:〒562-0035 箕面市船場東1-10-33
-
電話番号:072-726-2100
-
営業時間:9:00〜18:00
-
定休日:火曜・水曜・祝日
本展示場に導入いただいた自宅用サウナ製品について
-
本展示場に導入いただいたサウナ製品『Auroom Cala Glass』:https://totonou.co/collections/katei-private-sauna/products/private-cabin-sauna-cala-glass
-
自宅用サウナ製品トップページ:https://totonou.co/collections/katei-private-sauna
totonoüについて
totonoüは、「サウナと共にある暮らしを、日本で最速で実現する」をミッションに、北欧産サウナを販売するサウナスタートアップです。北欧・エストニアと日本を中心に「ととのえる」を専門とするメンバーたちが世界各国からフルリモートで勤務しています。現在は、家庭用・事業用の両面で、エストニア産サウナの輸入・販売・プロデュース・設計・施工を行っています。
totonoü公式HP:https://totonou.co/