― “好きだから住む”という木造賃貸アパートの新しい価値を提案 ―
<概要>
ブランド・デザイン戦略支援を展開する株式会社アーキセプトシティ(本社:東京都渋谷区、代表取締役:室井淳司)は、トーセイ株式会社(本社:東京都港区、代表取締役社長:山口誠一郎 証券コード:8923)が展開する木造賃貸アパートの新ブランド「T’s Cuore BLISS」(ティーズ クオーレ ブリス)のコンセプトをプロデュースし、ブランドの第一弾となる「T’s Cuore BLISS 自由が丘」が完成しましたので、お知らせいたします。

<T’s Cuore BLISS とは>
“至福”を表すBLISSを冠した木造賃貸アパートの新たなライフスタイル型ブランド
本ブランドは、木造賃貸アパートを「コスパで選ぶ」のではなく、「好きだから選ぶ」という価値観への転換を目指したライフスタイル提案型アパートです。ブランド名にある「BLISS」は至福を意味する英単語です。“自分の好き”を大切にし、上質なライフスタイルを求める人たちが集う家で、人や街と繋がり、楽しんで暮らすことができる至福の空気が流れる木造アパートのブランドとなります。
<物件コンセプト>
つながり、たのしみ、くらす家
人との繋がり、街との繋がり、好きとの繋がり。
繋がること、共有できることは人の本質的な幸福。
「自分の好き」を大切にしている人たちが集う家だから。
至福の空気が流れる幸せな木造のアパートへ。
<T’s Cuore BLISS 自由が丘のライフスタイル>
自由が丘という街と共鳴する3つのライフスタイルを空間として具現化しています。
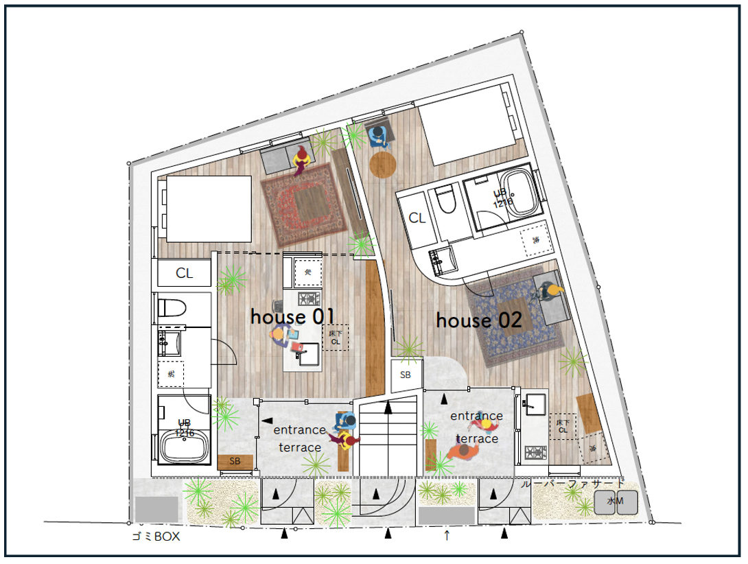
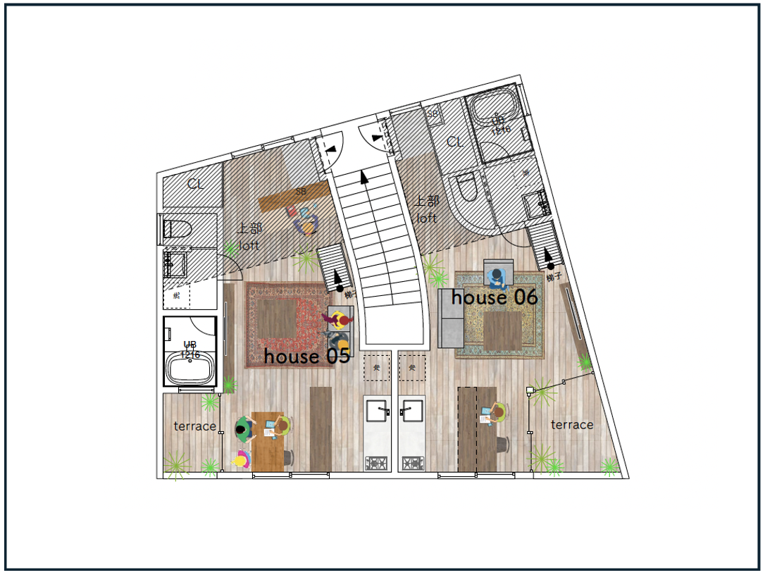
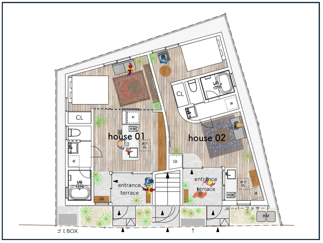
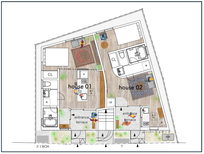
本物件は3階建て、各階2住戸、計6戸のアパートです。
1F:料理好きが暮らす部屋(小庭のある自由な集いの部屋)
2F:本好きが暮らす部屋(Book&Bed 時々Bread 本を旅する部屋)
3F:アート好きが暮らす部屋(屋根裏アトリエのある自由と発想の部屋)
<フロア構成>
1F:料理好きが暮らす部屋(小庭のある自由な集いの部屋)
半屋外の小庭に面したキッチンを利用して、料理をしながらパートナーや友人と自由な時間を過ごすことを目的としたライフスタイル。




2F:本好きが暮らす部屋(BOOK&BED 時々BREAD 本を旅する部屋)
部屋をぐるりと囲む書棚にお気に入りの本やグッズを並べ、コーヒーを片手に読書をしながら1日過ごすこと目的としたライフスタイル。




3F:アート好きが暮らす部屋(屋根裏アトリエのある自由と発想の部屋)
開放的なリビングや高い天井を活かしてつくられた広いアトリエ(ロフト)で、好きなだけ創作活動に没頭することを目的としたライフスタイル。




<T’s Cuore BLISS自由が丘 物件概要>
|
所在地 |
東京都目黒区自由が丘1-15-19 |
|
交通 |
東急東横線、東急大井町線「自由が丘」駅徒歩6分 |
|
コンセプト企画 |
株式会社アーキセプトシティ |
|
設計 |
松本悠介建築設計事務所 |
|
施工 |
株式会社大悟建設 |
|
構造・規模 |
木造 地上3階建て |
|
敷地面積 |
112.33㎡ |
|
延床面積 |
224.71㎡ |
|
専有面積 |
30.95㎡~35.29㎡ |
|
総戸数 |
6戸 |
|
間取り |
1R~1LDK |
|
竣工 |
2026年2月27日 |
<トーセイ株式会社 会社概要>
会社名 トーセイ株式会社 https://www.toseicorp.co.jp
代表者 山口 誠一郎
所在地 東京都港区芝浦四丁目5番4号
事業内容 不動産再生事業、不動産開発事業、不動産賃貸事業、
不動産ファンド・コンサルティング事業、ホテル事業
<株式会社アーキセプトシティ概要>
会社名:株式会社アーキセプトシティ http://archicept-city.com/
住所:東京都渋谷区猿楽町29-9-D22 代官山ヒルサイドテラス
代表者:室井淳司(むろいあつし)
設立:2013年
ブランド戦略、体験デザイン、店舗空間開発等において企業経営者や事業責任者の感性戦略パートナーとしてハイエンドプロジェクトのディレクション・監修を行う。