「タイパ」で生み出す豊かな「余白」。キッチンをハブにした新提案


株式会社LIXIL住宅研究所(本社:東京都品川区、代表取締役社長:加嶋伸彦)は、多様化する暮らし方に合わせて提案する規格住宅「YUIE PROJECT」の第3弾商品、「暮らし×自然体」をコンセプトとした「YUIE BE MYSELF」を、2026年1月8日(木)からYUIE PROJECT加入店を通じて発売します。
近年、Z世代を中心とした若年層において「タイムパフォーマンス(タイパ)」が重視されています。これは単に効率を求めるだけではなく「自分の好きなことをする時間」や「何もしない時間」といった、心の充足につながる時間を確保するためと考えられています。 「YUIE BE MYSELF」は、このようなニーズに応え、生活動線を手が届く範囲にまとめて効率化することで、自分らしく過ごせる「余白の時間」を生み出し、自分のペースで自然体に暮らせる住まいを目指しました。
■ 「YUIE BE MYSELF」の主な特長
1. 暮らしのすべてが完結する「キッチンハブ」設計
平日の忙しい日常を効率化するため、キッチンを 中心に、ダイニング、洗面、収納などを手が届く距離に配置しました。従来の「キッチン=料理」「洗面=洗濯」という役割にとらわれず、動線をコンパクトに集約することで家事の負担を減らし、 スムーズな生活リズムを生み出します。
2. 「シェア空間」と「プライベート空間」が緩やかにつながるゾーニング
家族や友人と過ごす「シェア空間(パブリック)」と、一人の時間を大切にする「プライベート空間」を高低差で区切り、緩やかにつながる暮らしを実現します。
・FLEX ROOM:
吹抜の大空間により、のびのびと過ごせる開放的な場所
・LOUNGE:
天井高をあえて低くし、一段下がった床座スタイルで非日常的なおこもり感を演出
・SHARE SPACE & PRIVATE ROOM:
2階にはロフト風のシェアスペースと、死角を利用してゆるや かにつながりつつも一人の時間を確保できる個室を配置
3. 選べる2つのモデル
ライフスタイルへのこだわりを際立たせた「FLAGSHIP MODEL」と、こだわりを踏襲しつつより現実的で暮らしやすい仕様の「STANDARD MODEL」の2種類を用意しています。
「YUIE PROJECT」では、第一弾「YUIE BOTANICAL」、第二弾「YUIE ATELIER」を発表してきましたが、今後も新たなコンセプトの「YUIE住宅」を順次投入することにより、多様化する現代の暮らしに合わせ、自分らしい時間と空間を妥協なく追求する新しい住まいの形を提案していきます。
「YUIE BE MYSELF」概要
1)商品概要

• 商品名: YUIE BE MYSELF(ユイエ ビー マイセルフ)
• 発売日: 2026年1月8日(木)
• 販売地域: 全国(YUIE PROJECT加入店エリア)
• 構造・性能: 耐震等級3相当、断熱等級5(ZEH水準)
※性能・構造は開発段階での仮定条件に基づく確認となります。地域によって異なるため、お客様が選択されたプラン、仕様によっては耐震等級3が満たせない場合があります。また、積雪が多い地域では、耐震等級1相当を基本として提案する場合があります。
• 建物本体参考概算価格:
①FLAGSHIP MODEL:2,250万円(税抜)~ ※価格の物件は延床面積 85.28㎡ / 25.79坪
②STANDARD MODEL:1,820万円(税抜)~ ※価格の物件は延床面積 82.80㎡ / 25.04坪
※地域・仕様により異なります。また、価格は2026年1月発売時点の価格になります。
・商品ラインナップ:
本商品は、価格帯を分けた「FLAGSHIP MODEL」と「STANDARD MODEL」の2つのモデルを設定し、ライフスタイルへのこだわりや、より現実的な暮らしやすさに応じた選択肢を提供します。また、コンセプトとプランは変えずに、プロが監修した複数の外観(4種)と内観(3種)のデザインパターンから好みのデザインを選択できる、豊富なバリエーションを用意しています。
・プラン数:2種(東西入・北入)※間取りは異なります
・仕様:主要資材にはLIXIL製品を使用 ※FLAGSHIPとSTANDARDで一部仕様が異なります
2)「BE MYSELF」を体現する空間デザイン

「YUIE BE MYSELF」の設計コンセプトは、「キッチンをハブに」全ての日常が完結する効率的な動線とプライベートと共有空間のメリハリです。
(1) 効率化とゆとりを実現する設計
コンパクトな動線設計と、マルチに使えるキッチン空間を大切にすることを可能にします。
(2) 「シェア空間」と「プライベート空間」の両立
家族の繋がりを保ちながら、個人の時間も尊重できるよう、空間を高低差で区切り、緩やかにつながる暮らしを実現しています。
「YUIE PROJECT」これまでの歩み
「YUIE」は、住まいのプロである当社とLIXILが、多様化する暮らし方に合わせて考えたデザイン規格住宅です。
第1弾「YUIE BOTANICAL」(2024年10月発売):
「植物との調和空間」をコンセプトに、屋内外をシームレスにつなぎ、普段の生活と植物の居場所がひとつながりになる住まいを提案。
第2弾「YUIE ATELIER」(2025年6月発売):
「私らしいを“つくる”アトリエのある平屋」をコンセプトに、趣味や仕事に没頭できるアトリエ空間を生活に取り入れた、コンパクトな平屋住宅を提案。
■ FLAGSHIP MODEL(フラッグシップ・モデル) | 概要
【外観】

・ありのまま、自然体に暮らすペルソナに好まれるシンプルでコンパクト感のあるフォルム
・開口の部分と壁の部分とでメリハリをつけ、シンプルながらも特徴がある外観デザイン
・通常の2階建てよりも高さを抑えた塗り壁の外観が作り出す自然体な雰囲気
【内観】※RELAX MODERN

・ハブとなる大きなテーブル周りに大きな収納を確保し、食器以外にも普段よく使うものが何でも揃うハブを中心に暮らす
・一段下がったラウンジは、ラフに寝転がれるような少し非日常のおこもり空間
・天井を低く抑えたロフト風のシェアスペースでは、少し距離感を保ちながら一緒に過ごすことが可能
・プライベートルームは死角で区切ることで、引戸を閉めずにゆるやかつながりながら一人の時間を大事にすることも可能
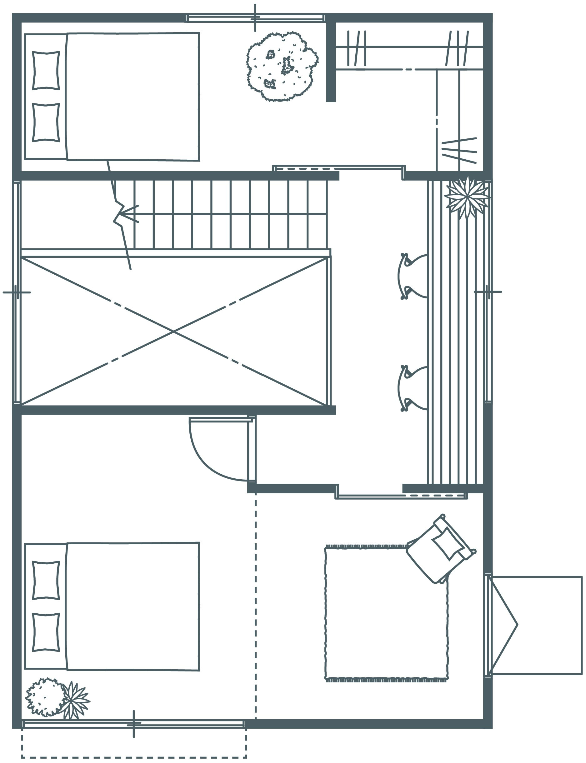
■ FLAGSHIP MODEL FLOOR PLAN | 平面図
FLAGSHIP MODEL PLANNING CONCEPT | 設計コンセプト
平日の日常は『キッチンをハブに』全てが完結する。手が届く距離でなんでも揃う暮らしを実現できます。キッチン=料理、ダイニング=食事、洗面は化粧や脱衣…という既存の役割りに囚われない、ターゲットに合わせたプランニングを提案します。


■ STANDARD MODEL(スタンダード・モデル) | 概要
【外観】

・FLAGSHIPモデルの外観コンセプトを踏襲
・床面積は同じようなサイズ感(25.04坪)で仕様・価格を抑えた実売向けモデル
【内観】

・ コンパクトながらも家族のシェア空間と、プライベート空間を、緩やかにつなげながら区切っている
■ STANDARD MODEL FLOOR PLAN | 平面図


・延床面積は25.04坪
・間口は3間・奥行き4.5間の2階建て
・2階南側のプライベートルームは2つに分け、2室にすることも可能
「YUIE 」商品に関する情報
・YUIE商品シリーズ HP:https://www.yuieproject.jp/product/
・YUIE専用お問い合わせ窓口:https://www.lixil-jk.co.jp/contact-yuie/
◆当社概要
・会社名:株式会社LIXIL住宅研究所
・代表者:代表取締役社長 加嶋 伸彦
・本社所在地:〒141-0033 東京都品川区西品川1-1-1
・URL:【株式会社LIXIL住宅研究所】 https://www.lixil-jk.co.jp/
【YUIE PROJECT】https://www.yuieproject.jp/
・事業内容:住宅及びビル建材・設備機器の製造販売・住宅フランチャイズチェーンの運営など、総合的な住生活関連事業を展開するLIXILの一員です。住宅フランチャイズチェーン事業の運営を担う企業として、アイフルホーム、フィアスホーム、GLホームの3ブランドを展開し、国内最大級の住宅フランチャイズチェーン事業を展開しています。