外気清浄機付き全熱交換型換気システム~「エアフォームワン※」~の販売開始
既存マンションの性能向上に向け、省リノベーションを推進する株式会社リコシス(代表取締役社長 山本卓也)は、高気密・高断熱化が進む中で課題として残る換気による空気質の改善を解決する「外気清浄機付き全熱交換型換気システム」(以下:空気循環システム)を販売開始することをお知らせいたします。
システム紹介の動画はこちらから↓
昨今、住宅の高気密・高断熱化が進む中、従来の換気では外気の温度変化や花粉・ウイルスなどの汚染物質がそのまま室内に入ってしまいます。快適性と健康を守るため、温度・湿度調整や汚染物質を遮断しながら新鮮な空気を取り入れる換気方式が求められています。
「空気循環システム」は、「全熱交換型換気」と「外気清浄機」を直結し一体化させ、マンションのリノベーションに適した形で設計でき、課題の解決と共に導入やメンテナンスのし易さを両立できる事をご案内できる運びとなりました。
「空気循環システム」の3つの特徴
1. 全熱交換型換気システム
室温に近い快適な温度で空気を取り込み、計画換気を行います。
【例:冬の場合】
排気の際に室内空気の温度を利用してセラミック製の素子を通して蓄熱し、給気の際は外の冷たい空気に対して素子を通じて熱交換を行うため、室温に近づけて新鮮な空気を取り入れます。結果として空調(暖冷房)の負荷を抑える事に繋がります。
型番:VAF-Re24

2. 外気清浄機(トルネックス製)
花粉・ウイルス・PM2.5など、汚染物質を電子式集塵フィルタにより0.1㎛以下の微粒子までも除去。
計画換気システムと直結するため、外気清浄機はこの1台で住まい全体に対して機能します。
型番:G12JP1T


3. 優れたメンテナンス性
フィルタに手が届きお手入れが容易なため、新鮮&クリーンで快適な空気質を維持。換気システムは、フィルタの清浄を定期的に行わないと機能が低減するためメンテナンスのし易さは重要です。

「空気循環システム」の設置例
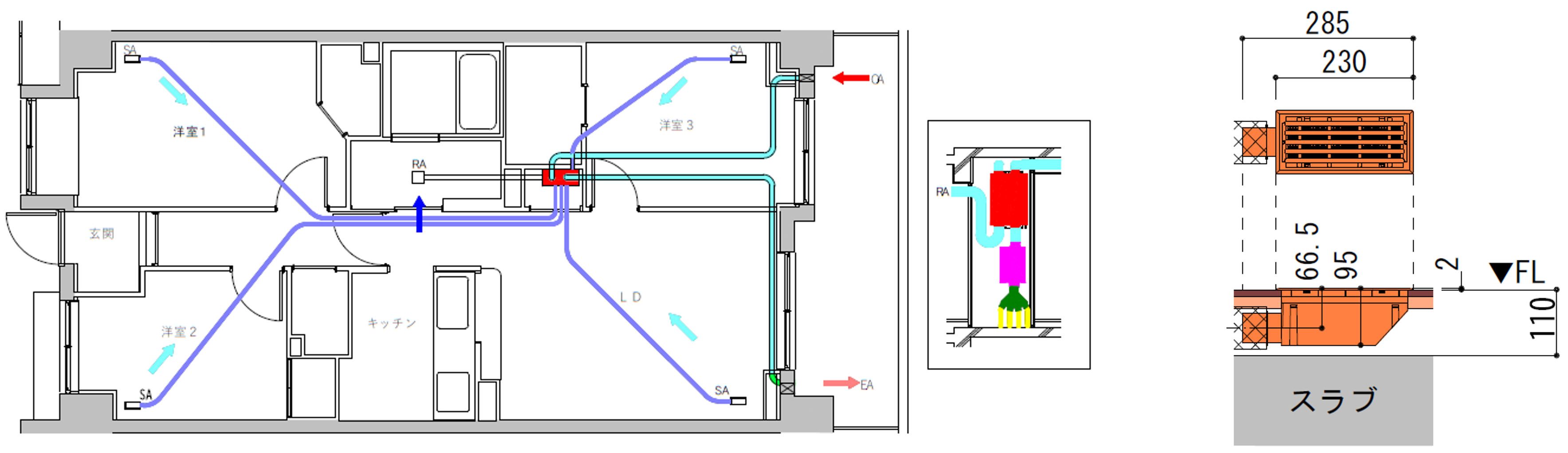
【設置例①】 マンションの二重床(置床空間)をダクト空間として利用
住まい全体に快適な熱交換型の計画換気が可能となります。大部分のダクトが二重床の床下空間に配管されますので、すっきりとしたデザインが可能となります。

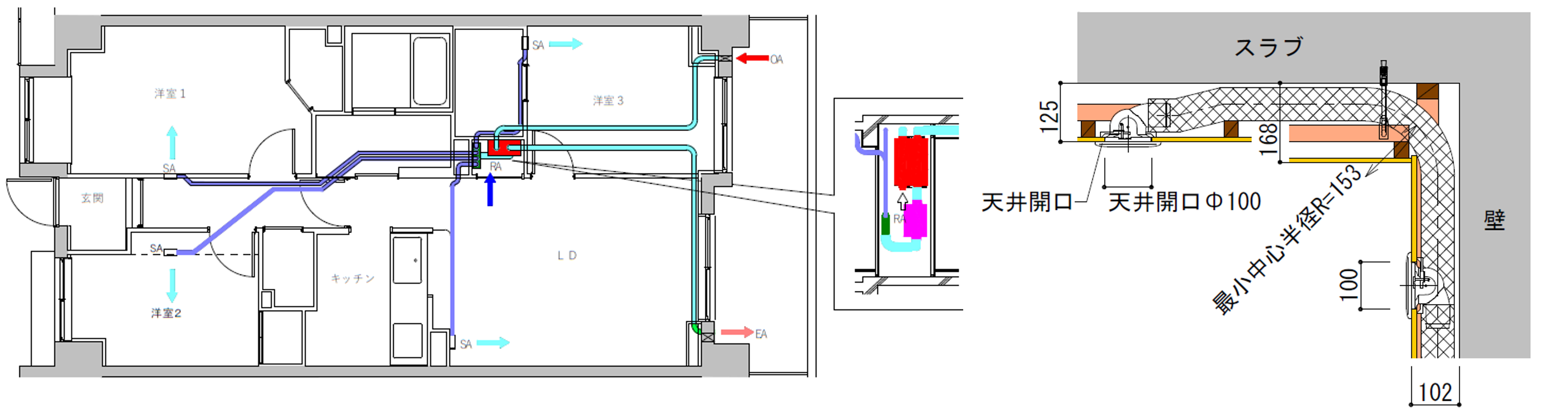
【設置例②】 マンションに二重床が無い場合(直貼りの床)
廊下の天井空間や梁ダクト(梁を一部ふかす、梁のように見せる)の活用により配管する例です。

施工性:標準工期は延べ3日程度(※他の工事の影響により変動します)
(参考)性能に関する実証実験の状況
株式会社リコシスは株式会社トルネックス(代表取締役:松井 周生)の協力により、町田市のマンションにおいて、空気質に関する性能の実証実験を行いました。
1. 熱交換型換気システムの夏季における実証実験(快適な温度が室内に給気できたか)
夏の外気が34.7℃であるのに屋内に入る新鮮空気の温度は26.4℃と快適な空気質環境となります。

2. 外気清浄機を併用した場合における外気の粉塵を遮断している性能の実証実験
外気清浄の能力の実証実験を次の通り実施。
換気システムの外気からの吸込み口に線香を着火し、その後消化。その経過の中で各居室の汚染度の状況を計測しました。外気の汚染度に比べ室内は汚染度が極めて低い事が確認できました。

≪参考 実証実験に関する有識者のコメント≫

株式会社リコシスは、マンションのリノベーション販売物件で、省エネや温熱・空気質環境に関して、様々に先進的な取り組みをされています。
住宅の性能は机上の計算値、または実験室でのごく限定的な実験に基づいて議論されることが多いのですが、今回リコシスは関係する専門業者と連携してリアルな販売物件における実証実験に取組んでおり、より信頼できる効果検証と改善に努められています。
その取り組みの中で、「全熱交換型換気」と「外気清浄機」を直結させたシステムを今回新規に開発されました。自分も現地確認や分析にご一緒する中で、信頼できる貴重な実測データとなっていることを確認できました。
本取り組みが、 戸建・新築に比べて遅れがちなマンションリノベーション物件において、温熱・空気環境や省エネ性能の改善につながることを期待します。


※本リリースに記載の名称:エアフォームワンは暫定的なもので、今後変更となる可能性があります。
正式名称は決定し次第、お知らせいたします。
<お問い合わせ先>
「空気循環システム」の詳細および、その他の省エネ商材につきましてはこちらをご覧ください。
URL:https://www.recosys.co.jp/products
省エネ商材(空気循環システムは現在準備中)の展示スペースを用意しております。
開催日時やお申込みにつきましては、下記URLよりお願いいたします。
URL:https://www.recosys.co.jp/event
会社情報
株式会社リコシス
担当:川野・三石
TEL:0120-859-117
MAIL:info@recosys.co.jp