ー空縁”と“土間”の生活価値を刷新。GX ZEH+標準搭載ー

ナックハウスパートナー株式会社(本社:東京都新宿区、代表取締役社長:岡田康生)が運営する住宅フランチャイズブランド「エースホーム」は、創業25周年を迎える本年、2001年4月に発売した初の商品「Xest(ゼスト)」を全面刷新し、「あたらしい日本の住まい」をテーマとする新モデルを発表します。
本モデルは、表層的な“和風”ではなく、日本文化が育んできた「心地よさ」という暮らしの本質を掘り下げ、現代の暮らしに合う形で再構築したもの。ルームクリップ株式会社(本社:東京都渋谷区、代表取締役社長:髙重正彦)が運営する「RoomClip住文化研究所」の分析結果をもとに、内と外を柔らかくつなぐ「空縁(そらえん)」、新時代の動線を生む「土間空間」、そしてGX ZEH+を標準搭載した未来基準の性能を融合し、現代の生活者ニーズに応える新たな日本住宅像を提示します。
■「和の心地よさ」を現代に再構築するという挑戦
エースホームが2001年に発表した「Xest」は、フランチャイズ本部であるナックハウスパートナー株式会社の家づくり思想を象徴する原点的商品でした。創業25周年の節目に刷新する新モデルでは、日本文化が育んできた“心地よさ”を見つめ直し、現代の暮らしへ再構築しました。「和」を意匠ではなく、光や風との距離感や、曖昧な境界が生むゆとりとしてとらえた点が大きな特徴です。
RoomClip住文化研究所との分析から、縁側や土間といった伝統空間が現代の生活で再び求められていることが明らかになりました。これを受け、新Xestでは「静」と「動」という対照的な価値として空間を再構築。“静”の領域となる 「空縁(そらえん)」 は、外からの視線を遮りながら空に開き、半階上がったスキップフロアで光と風を柔らかく取り込む現代の縁側です。
一方“動”の領域である 「ミラクル大収納」 と 「通り土間」 は、車からの荷物をそのまま運び込める収納性と、玄関からランドリーへ短い動線を両立。汚れを気にせず出入りでき、地域の友人を気軽に迎えられる“カジュアルな客間”としての役割も担います。
さらに、巾木や額縁の最小化、スリム建具によるノイズレスデザインが空間全体の静謐性を高め、日本らしい引き算の美学を体現。加えて GX ZEH+を標準仕様とすることで、創エネ・蓄エネ・省エネを統合した未来基準の住宅性能を実現しています。ナックハウスパートナー株式会社とエースホームは、この「静と動の再構築」を軸に、持続可能で心地よい住まいを今後も提案していきます。
■商品の特徴


プラン番号 E110090-521
1階床面積 90.75㎡ 延床面積 152.00㎡(45.97坪)
2階床面積 61.25㎡ 施工床面積 174.50㎡(52.77坪
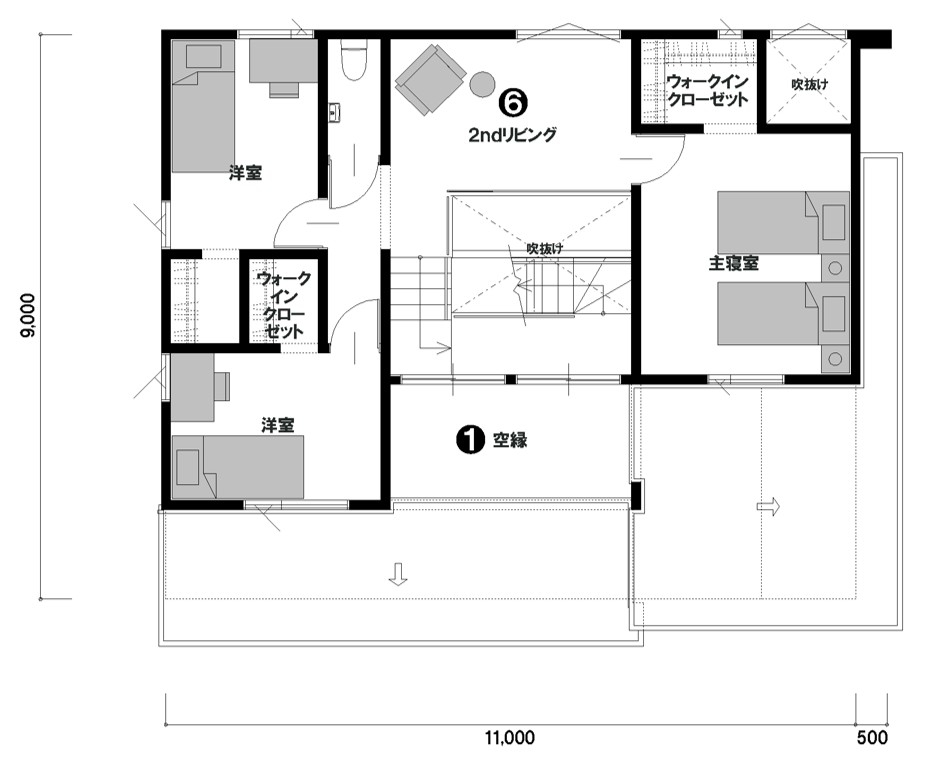
❶ 空縁(そらえん)
外からの視線を巧みに遮り、空へだけ開く“静”の中間領域。1階より半階上がったスキップフロアが空を大きく切り取り、柔らかな光と風を室内へ誘います。季節の移ろいを感じながら静かに過ごせる、心身を整える特別なリラックス空間です。


❷ 北側でも光注ぐLDK
空縁を「光の井戸」として設計し、北側配置でも太陽光を奥まで導く工夫を凝らしました。柔らかい自然光が一日中室内を照らし、明るさと開放感を両立。視線の抜けとプライバシーを同時に確保しながら、家族が心地よく集える団らんの場をつ
くります。

❸ ミラクル大収納
玄関・通り土間とシームレスにつながる大容量ストレージ。車からそのまま荷物を運び込めるため、アウトドア用品や大型の季節物、ペット用品まで簡単に“直行収納”できます。家の中心にある「動」の受け皿として、散らかりを未然に防ぎ、趣味や子育ての道具もしまいやすい、生活に寄り添う多機能空間です。

❹ 通り土間
玄関からミラクル大収納、ランドリールームへ一直線につながる効率的な動線で、汚れや濡れ物も気兼ねなく運び込めます。外と内の“中間領域”として機能し、地域の友人や子どもの仲間を気軽に迎えられるカジュアルな客間にも。昔の町家が持っていた合理性と、現代の暮らしの柔軟性を併せ持つ、開かれた交流空間です。
❺ ランドリールーム+ファミリークローゼット
「洗う・干す・しまう」を同一空間に集約し、移動のムダを徹底削減。天候に左右されない広い室内干しスペースと、すぐ隣でしまえる大容量クローゼットが時短を実現します。衣類管理が劇的に楽になり、家事負担を軽くする現代的な合理動線です。
❻ 2ndリビング
2階に設けた2ndリビングは、家族が思い思いの時間を過ごせる“オープンな共有空間”。読書や勉強、ストレッチなど軽い趣味にも使え、吹き抜け越しに1階リビングと緩やかにつながることで、家族の気配を感じつつ程よい距離感を保てます。“集う1階・ほどよく分かれる2階”という現代的な暮らし方を実現します。

■商品概要
• 商品ブランド:ACE HOME
• 商品名:Xest
• 販売エリア:北海道・沖縄を除く全国のACEHOME加盟店
•発売期間:2025年11月21日~
- 補足資料 –
■ナックハウスパートナー株式会社について https://www.nac-hp.co.jp/
2000年に創業したナックハウスパートナーは、ハウスメーカーと地元密着のビルダー双方のメリットを最大限に生かせる住宅フランチャイズ企業で、現在約200社の加盟店が全国で住宅の供給を展開しています。
「デザイン面でも耐久性を持たせた住まいにすることが、これからの住まいにおいては重要である」という信念に基づき、お客様の嗜好、加盟店の供給形態、地域等の特性に応じた商品を開発しています。
■ナックハウスパートナー株式会社 企業情報
社名:ナックハウスパートナー株式会社
設立年:2000年11月
資本金:100 百万円
代表者:岡田 康生
本社所在地:東京都新宿区新宿1-8-1 大橋御苑駅ビル7階
電話番号:03-5944-0830(代表)
【本件に対する問い合わせ】
ナックハウスパートナー株式会社 住宅ネットワーク事業本部 ブランドマーケティング室
℡ 03-5944-0830 Fax 03-5944-0832 ✉ marketing@acehome.co.jp
