各メディアに個別公開!「1平米1万円の定額制リフォーム」の実例を公開。マンション一室まるごとのフルリフォーム・リノベーションを着工から完成まで、撮影取材していただけます。
株式会社SAMO SMILE(本社:兵庫県神戸市、代表取締役:藤田久利)は、2025年9月30日より、兵庫県西宮市内のマンションにて、一室まるごとのフルリフォーム・リノベーションを着工します。(リフォーム補助金2025適用予定)私たちは、お客様にありのままの姿を知っていただき、心から安心してリフォーム工事を任せていただける会社でありたいと考えています。その姿勢を多くの皆様に知っていただくため、この工事現場を各メディアに個別公開します。

「1平米1万円」と「顔の見える」接客で、お客様のリフォームをサポート
当社は、定額制リフォーム「イメチェン」のFC加盟店として、イメチェン神戸店を運営しています。お客様がリフォーム費用への不安なく計画を始められるよう、**1平米1万円(税抜)**という明瞭な価格設定で提供しています。 ★リンク:当社HPイメチェン説明ページへ

また、2025年4月からスタートした公式YouTubeチャンネル「さもすまいる.chオフィシャル」は、「リフォーム動画の新しい形?」をテーマに、専門知識を分かりやすく解説するだけでなく、リフォーム事業への想いや社長の人柄をありのままに発信しています。一度ご覧いただければ、これまでのリフォーム動画とは一味違う、新しい形を感じ取っていただけるはずです。

さらに、神戸中心部を走る神戸市営バス4台にラッピング広告を施すなど、地域に根差した広報活動にも積極的に取り組んでいます。この多角的な活動を通じて、お客様との温かい信頼関係を築くことを目指しています。

【ユニークなブランドストーリー】
当社の社名「SAMO SMILE」は、代表の藤田が2003年から飼い始めた愛犬「サモエド」に由来しています。”サモエドスマイル” と同様に、お客様にも笑顔になっていただきたいという願いを込めており、現在、4代目のサモエドと共に生活しています。
このユニークな由来から、サモエドのキャラクターを当社のイメージとして活用し、個人的に運営するサモエドたちのYouTubeチャンネルも人気を集めています。

また、事務所外壁には、ニチハ株式会社の高級サイディング「COOLミライア」の鏡面ホワイトを主に採用し、そこに同素材のレッド柄ラインを施すことで、当社サモエドキャラを連想させるユニークな外観を実現しています。
【メディア取材のお願い】
この度 着工する一室まるごとのフルリフォーム・リノベーションの現場では、当社のリフォームに対する真摯な姿勢と、工事のビフォーアフターを映像で捉えることができます。解体から完成に至るまでの過程、そして社長 藤田による解説を撮影いただくことで、読者や視聴者にとって有益なコンテンツ制作にご協力いたします。
※ご参考:当社施工事例動画へのリンク
取材可能期間: 2025年9月30日より12月初旬まで(11月末 工事完了予定)
場所: 西宮市内(詳細はお問い合わせください)
内容: 解体から内装完了までの様子、完成後の撮影、代表 藤田へのインタビュー、イメチェンFC本部(株式会社ココテラス)篠原社長の同席・インタビューも可、など
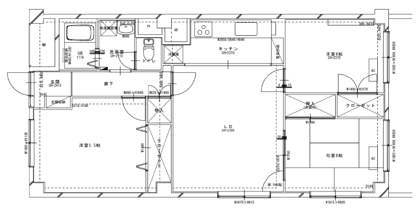
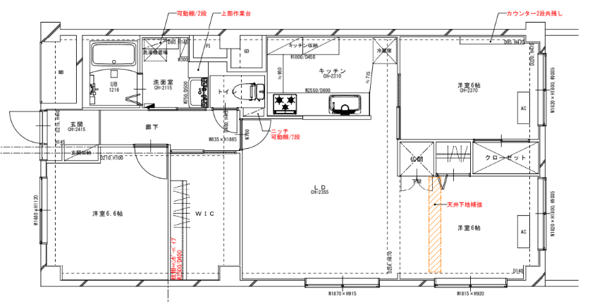
リフォーム内容:間取り3LDK、専有面積 約75㎡、築50年の鉄筋コンクリート造。
壁床天井の全面内装
和室の洋室化
壁向けキッチンを対面キッチン化
ユニットバスのサイズアップ交換
洗面脱衣室の空間変更およびトイレの移設
ウォークインクローゼットの新設
下駄箱・室内ドアの新設および新品交換
新リビングに内窓インプラスを設置 などなど。


★本件に関する取材、お問い合わせは下記までご連絡ください。
【会社概要】
名称:株式会社 SAMO SMILE(サモスマイル)
所在地:神戸市兵庫区神田町29-9
代表者:藤田 久利
事業内容:住宅リフォーム会社
許認可:一般建設業 許可、宅地建物取引業免許
ホームページ https://www.samosmile.com/
公式YouTube さもすまいる.chオフィシャル
【本件に関するお問い合わせ先】
株式会社SAMO SMILE(サモスマイル)
担当:藤田 久利
電話:078-600-9598 携帯:090-7105-8225
メール:samosmile.kobe2023@gmail.com