複数の建物タイプを最適配置、「統一美」あふれる賃貸住宅群を創出する革新的スキーム

建設・不動産業のハタス株式会社(愛知県刈谷市、代表取締役社長:塚本龍生)は、同社が展開する賃貸住宅ブランド「CubeNoir(キューブノワール)」において、複数の建物タイプを組み合わせて一つの「街」を形成する新スキーム「CubeNoir Villéo(キューブノワール ヴィレオ)」を発表しました。
フランス語の「Ville(街)」と「Portfolio(ポートフォリオ)」を組み合わせた造語で、従来の単体建物による土地活用から「街全体」の視点でのアプローチを提案する画期的な取り組みとなります。
従来の賃貸経営の課題を「街づくり」の発想で解決
従来の賃貸住宅事業では、単一用途・画一的な間取りによる空室リスクや、変形地・狭小地での活用困難、さらには周辺景観との調和不足などの課題が指摘されてきました。これらの課題に対し、ハタス株式会社の社内新商品開発チーム「INNOVISTA」(イノヴィスタ)が提案するのが「CubeNoir Villéo」スキームです。
「CubeNoir Villéo」は、複数の建物を最適に組み合わせて賃貸住宅群を一つの「街」として形成する革新的なアプローチで、土地活用の概念を根本から変える取り組みとなっています。
「黒」と「四角」で統一された美しい街並み
CubeNoirの最大の特徴は、「黒」と「四角」を基調とした統一デザインにあります。すべての建物タイプ(戸建住宅、重層長屋、ガレージハウス、スモールオフィス)が同一のデザイン言語で設計されており、複数棟を組み合わせても調和の取れた美しい街並みを形成します。
【CubeNoirの建物タイプ】
-
Jouer Villa(戸建住宅・3LDK):ファミリー層向けのゆとりある住環境
-
Jouer Duo(重層長屋・2LDK/1LDK):1人暮らしからDINKS・小規模ファミリーまで対応
-
Jouer Garage(ガレージハウス):車・バイク愛好家向けライフスタイル特化型
-
Petit Bureau(スモールオフィス):多様化する働き方に対応し、少人数で働ける空間を提供
ヨーロッパの歴史的街並みや日本の古都の美しさが、建物の高さ・配色・形状の統一性にあるように、CubeNoir Villéoも外観の統一により、住民には心地よい環境を、地域には感動を与える景観を提供します。




地域特性に応じた柔軟な設計で空室リスクを軽減
CubeNoir Villéoスキームは、以下3つのポイントを柱として設計されています。
-
地域ニーズに応じた最適配置
地域の世帯構成や需要動向を分析し、建物タイプや間取りの比率を調整します。賃貸住宅群を「ポートフォリオ」として捉えることで、単一間取りでは対応できない幅広い層のニーズに応え、空室リスクを大幅に軽減します。
-
オーナーの投資負担を軽減する段階的開発
低層賃貸住宅を基盤とすることで初期投資を抑制し、オーナーの資金繰りに配慮した計画的な開発が可能です。重層長屋と駐車場でスタートし、収益の安定化とともに戸建住宅を追加するなど、無理のない投資ペースで資産を拡大できます。
-
変形地への柔軟な対応
建物を個別配置することで、特殊な敷地条件でも土地を無駄なく活用します。大規模共同住宅では実現困難な、変形地の有効活用を実現します。
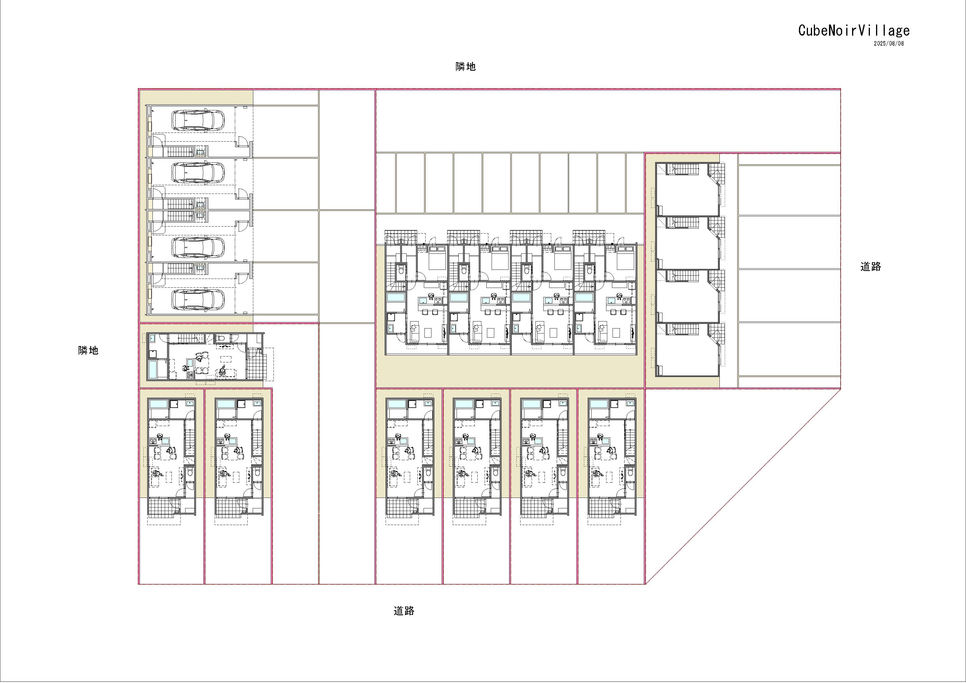
仮想大街区プランによる具体的活用例
面積2,495㎡の敷地での仮想プランでは、戸建住宅「Jouer Villa」、重層長屋「Jouer Duo」、ガレージハウス「Jouer Garage」、スモールオフィス「Petit Bureau」を配置します。
道路側にはスモールオフィスと住宅を配し、内側にガレージハウスと重層長屋を配置することで、多様な用途と美しい街並みの両立を実現しています。このプランの特長は、変形地を活かしながらワークスタイルと多世代居住を同時に実現できることにあります。
【配置計画例】
-
北西エリア:ガレージハウス「Jouer Garage」4戸
-
北エリア:重層長屋「Jouer Duo」8戸
-
北東エリア:スモールオフィス「Petit Bureau」4戸
-
南側・南東エリア:戸建住宅「Jouer Villa」7戸

この他、小規模な敷地でも効果的な活用が可能で、例えば重層長屋「Jouer Duo」1棟(1階:1LDK×4戸、2階:2LDK×4戸)と戸建住宅「Jouer Villa」(3LDK×4戸)を組み合わせることで、3LDK・2LDK・1LDKの3通りの間取りを一つの街区で実現できます。
Cube Noir Villeoの特長は、限られた敷地面積でも多様な世代のニーズに対応し、安定した入居率を確保できることにあります。
CubeNoir Villéoの特長と可能性
-
多世代共存コミュニティの形成
CubeNoir Villéoの特徴は、単なる建物の集合体ではなく、多世代が共存する持続可能なコミュニティを形成することにあります。ファミリー層、DINKS、単身者、さらにはスモールオフィス利用者やガレージハウス愛好家が一つの「街」で暮らすことで、住民同士が支え合える環境が生まれます。
この多様性は、地域の人口構成変化や経済状況の変動にも柔軟に対応できる強みとなり、長期的な資産価値の維持に貢献します。
-
美しい街並みの継承と時代適応力
CubeNoir Villéoは、統一されたデザインにより時代を超えて愛される街並みを形成しながら、社会情勢の変化にも柔軟に対応します。人口減少や世代交代により住宅需要が変化しても、建物の追加・削減や用途変更により街全体を最適化できます。この柔軟性により、一度構築した「街」は時代を超えて価値を保ち続けます。
-
長期的な資産価値の向上
統一されたデザインコンセプトと多様な建物タイプの組み合わせにより、CubeNoir Villéoは時代の変化に左右されない普遍的価値を持ちます。美しい街並みと機能性を兼ね備えた賃貸住宅群は、長期的な資産価値の向上を実現します。
100年の街づくりへの挑戦
CubeNoir Villéoは、デザイン性と機能性を両立させながら、地域コミュニティの形成にも貢献する次世代型土地活用ソリューションとして注目を集めます。従来の土地活用の概念を根本から変えるこの取り組みは、土地オーナーとの協働により次世代、次々世代に誇れる街を創造することを目標としています。

CubeNoir Villéoは、デザイン性と機能性を両立させながら、地域コミュニティの形成にも貢献する次世代型土地活用ソリューションとして注目を集めます。
従来の土地活用の概念を根本から変えるこの取り組みは、土地オーナーとの協働により次世代、次々世代に誇れる街を創造することを目標としています。
ハタス株式会社は、その革新的な取り組みが賃貸住宅業界に新たな潮流をもたらすことを目指し、持続的な住まいと街を創造する挑戦を続けています。
【過去のプレスリリース】
ハタス株式会社のその他の取り組みについては、こちらをご覧ください。

【会社概要】
会社名:ハタス株式会社
代表者:代表取締役社長 塚本龍生
設立:1987年9月
本社所在地:愛知県刈谷市熊野町4-75-1
事業内容:賃貸住宅の企画・建設・販売・仲介・管理、土地活用コンサルティング、不動産資産運用、リノベーション事業
