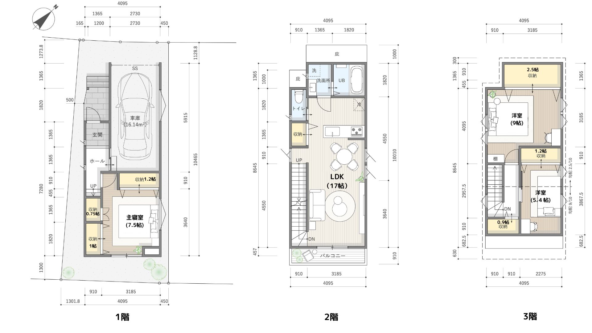
バウハウス株式会社(代表取締役:浅井将太、本社:埼玉県さいたま市東町2−136−5)は、さいたま市西区指扇1884-57にて、BAUHAUSデザイナーズシリーズ、JR新宿駅から最短35分、西大宮駅徒歩10分にビルトインガレージ付き・3LDKの新築デザイナーズ戸建て(土地69.38㎡/建物106.24㎡)が3,888万円で登場!
開放感のある天井高3メートル、デザイン性と機能性を兼ね備えたGRAFTEKT社製キッチン、
そして暮らしやすさを追求したたっぷり収納など、魅力が詰まった戸建ての販売を開始いたしました。




BAUHAUSデザイナーズ住宅シリーズとは?
埼玉・東京・神奈川エリアを中心に展開する、ハウスメーカー並みの高品質住宅を”適正価格”で提供するデザイナーズ住宅ブランド。
元ハウスメーカートップセールスでありデザイナーである代表・浅井将太が住まいづくりの全てをプロデュースしています。
BAUHAUSの代表的な3つのデザイナーズ住宅の事例を、わかりやすくまとめた特設サイトも公開中!ぜひご覧ください。

▼気になる建物の詳細はこちら!
▶︎BAUHAUSデザイナーズ 5つの特徴
1.高品質で適正価格。将来的に資産価値が残る土地を選定
都内へのアクセスが良好で、駅徒歩10分圏内という立地を厳選。資産性にもこだわった住宅です。
2.”奥様を輝かせる住まい”をテーマに水回りや子育てを重視した間取り
家事のしやすさや育児のしやすさに配慮した設計で、毎日の暮らしがより快適に。
3.仕様・デザイン・照明計画まで、デザイナーが徹底打ち合わせして作り上げるデザイナーズ住宅が標準仕様
注文住宅のような細部までこだわったプランを、あらかじめ備えた贅沢な仕様です。
4.「デザインは機能的でなければならない」という信念のもと設計
安心で暮らしやすい間取り、設計を追求。代表がハウスメーカー時代に研究した、”お子様が天才になる間取り”を取り入れています。
5.幅2730・奥行5915の大型ビルトインガレージや、天井高3mの開放的な空間設計
明るく、風が通り抜ける心地よい住まいで、開放感溢れるゆとりある暮らしを実現します。
写真だけじゃ伝わらない、空間の魅力をぜひ動画でご覧ください✨
▶︎新発売!BAUHAUSデザイナーズ西大宮の特徴3選
1.完成前販売❗️間取り・水回り・デザイン等変更可能な建売住宅
完成前に販売を行うことで、お好みに合わせて色・水回り・間取りの軽微な変更も可能です。
また、1級建築士デザイナーと直接じっくりと打ち合わせができるのも魅力のひとつ。
間取りや仕様について、3回・5回・10回と段階に応じて相談を重ねることができ、理想の住まいづくりをしっかりサポートいたします。
建売住宅でありながら、まだ完成していない——
まるでサグラダ・ファミリアのような✧ ݁ ⊹˚˖ .ワクワク感あふれる家づくりを楽しんでいただけます❣️
2.モデルハウス販売による特別価格 販売価格なんと3,888万円!
大幅なディスカウントでめちゃめちゃお得❗️
BAUHAUSデザイナーズの住宅は、ハウスメーカーではオプション扱いとなるような仕様が標準仕様。デザイン性の高い高級住宅が、BAUHAUSなら手の届く価格で購入できます。
デザイン性・立地・仕様の全てにこだわったデザイナーズ住宅を、お得に手に入れるチャンスです!
しかも価格は3,888万円というスペシャルプライス!早い者勝ちの特別価格です!
3.専属デザイナーが手掛ける、こだわり抜いたインテリア&照明プラン
新発売❗️BAUHAUSデザイナーズ西大宮では、専属デザイナーが細部までこだわり抜いたインテリアデザインと設計プランをご提案。まるで韓国の高級ホテルを思わせる洗練された空間デザインが魅力です。
照明や家具のプランのご相談も可能!さらに、お好みに合わせてデザインを自由に変更することも可能!こんな建売見たことありますか?🫢












▼BAUHAUS西大宮を少しでも気になる方はコチラ▼
🏡未公開物件のご案内&お問い合わせ方法
「BAUHAUSデザイナーズシリーズ」では、東京都北区赤羽・さいたま市西区・中央区などに、まだリリース予定の未公開物件を複数ご用意しています。
未公開物件のお問い合わせは、下記お問い合わせボタンクリック後、細やかなご要望をヒアリングさせていただいたお客様より優先でご案内いたします。
気になる方は、ぜひお気軽にお問い合わせください📩
下記ボタンからすぐにご連絡いただけます!
▶︎BAUHAUS西大宮mujinショールーム
BAUHAUS西大宮mujinショールーム(埼玉県さいたま市西区西大宮2-2-8)はいつでも、誰でも、ご見学可能です◎
ショールームの雰囲気を知りたい方は、こちらのルームツアー動画をご覧いただき、ぜひ内覧予約をお願いいたします。
※注意事項
・物件パース動画はイメージとなっており、実際の現況を優先させていただきます。
・物件の詳細や仕様につきましては、弊社デザイナーまでご確認ください。
・物価高騰による資材価格の変動に伴い、販売価格が変更する場合がございます。
■企業情報
会社名 : BAUHAUS株式会社
代表 : 代表取締役社長 浅井将太
本社 : 〒330-0841 埼玉県さいたま市大宮区東町2丁目136−5
代表番号 048-783-5653
ホームページ : https://bauhaus2017.com/
Instagram : https://www.instagram.com/bauhaus_feat_moks/
Youtube : https://www.youtube.com/channel/UCQhPt-lAs2NvN6IuFAURTJg
X(旧Twitter) : https://x.com/makes_order