コワーキングスペース・レンタルオフィスのBIZcomfort(ビズコンフォート)を運営する、株式会社WOOC(読み方:ウォーク、所在地:東京都品川区、代表取締役:清水 裕久 以下、WOOC)は、2026年4月16日(木)に「BIZcomfort洗足池」をオープンします。
また、オープンを記念し、4月16日(木)から19日(日)の4日間は、会員登録不要・無料でコワーキングスペースを利用できる無料体験会を開催します。まずは施設を試してみたい方や、テレワーク・リモートワークの集中できる環境を探している方が気軽に体験できる機会です。


大田区 洗足池エリア初のコワーキングスペース
東急池上線「洗足池」駅周辺は、落ち着いた住宅街でありながら五反田・蒲田方面への直通アクセスを有し、都心への利便性も高いことから、ファミリー層や子育て世代を中心に多くの人が暮らすエリアです。駅の目の前には、都内有数の水辺のオアシス「洗足池公園」が広がり、自然豊かで住みやすい環境が整っています。一方で、シェアオフィスやコワーキングスペースといった、ビジネスパーソン向けのワークスペースはこれまで存在していませんでした。
出社回帰の動きが進む中でも、在宅勤務やテレワーク、リモートワークを継続的に取り入れる働き方は定着しつつあります。当施設のオープンにより、利用者は自宅近くに働く場所を持つ「職住近接」の働き方が可能となり、在宅勤務者や個人事業主にとって、自宅でもカフェでもない“第三の仕事場”という新たな選択肢を提供します。
仕事利用にとどまらず、資格取得をめざす社会人の勉強場所や、自分時間を過ごす場所としても活用でき、地域住民の働き方やライフスタイルの幅を広げる一助となります。
4日間限定の無料体験会を実施
オープンに合わせて、2026年4月16日(木)から19日(日)までの4日間、内覧会および無料体験会を実施します。期間中はコワーキングスペースを自由に利用することができるため、これまで利用したことがない方でも実際の使い方を体験できます。この体験を通じて「自宅でも職場でもない働き方」の選択肢を地域の方々に知っていただきたいと考えています。
【開催日時】2026年4月16日(木)~19日(日)
[内覧会 受付時間]9:00~18:00(最終受付 17:30)
[無料体験会 受付時間]10:00~17:00(最終受付 16:00)
【利用方法】BIZcomfort洗足池のHPから内覧予約ページにアクセスし、ご希望日時・必要事項を入力の上ご予約ください。確定日時は追ってご連絡いたします。4月16日のオープン以降の内覧予約も随時受付しております。
皆様のご参加を心よりお待ちしております。
メディア関係者の取材や撮影も歓迎しております。ぜひお気軽にお越しください。事前にご連絡をお願いいたします。
担当:株式会社 WOOC 國吉(くによし) TEL:080-7510-1295 MAIL:pr@wooc.co.jp
BIZcomfort洗足池の特徴
特徴1. 24時間365日使えるコワーキングスペース
日中の仕事場やテレワークの場所としてはもちろん、通勤前後の自分時間、週末の資格取得のための勉強時間など、さまざまなシーンで利用できます。

特徴2. 用途に合わせて選べるブース
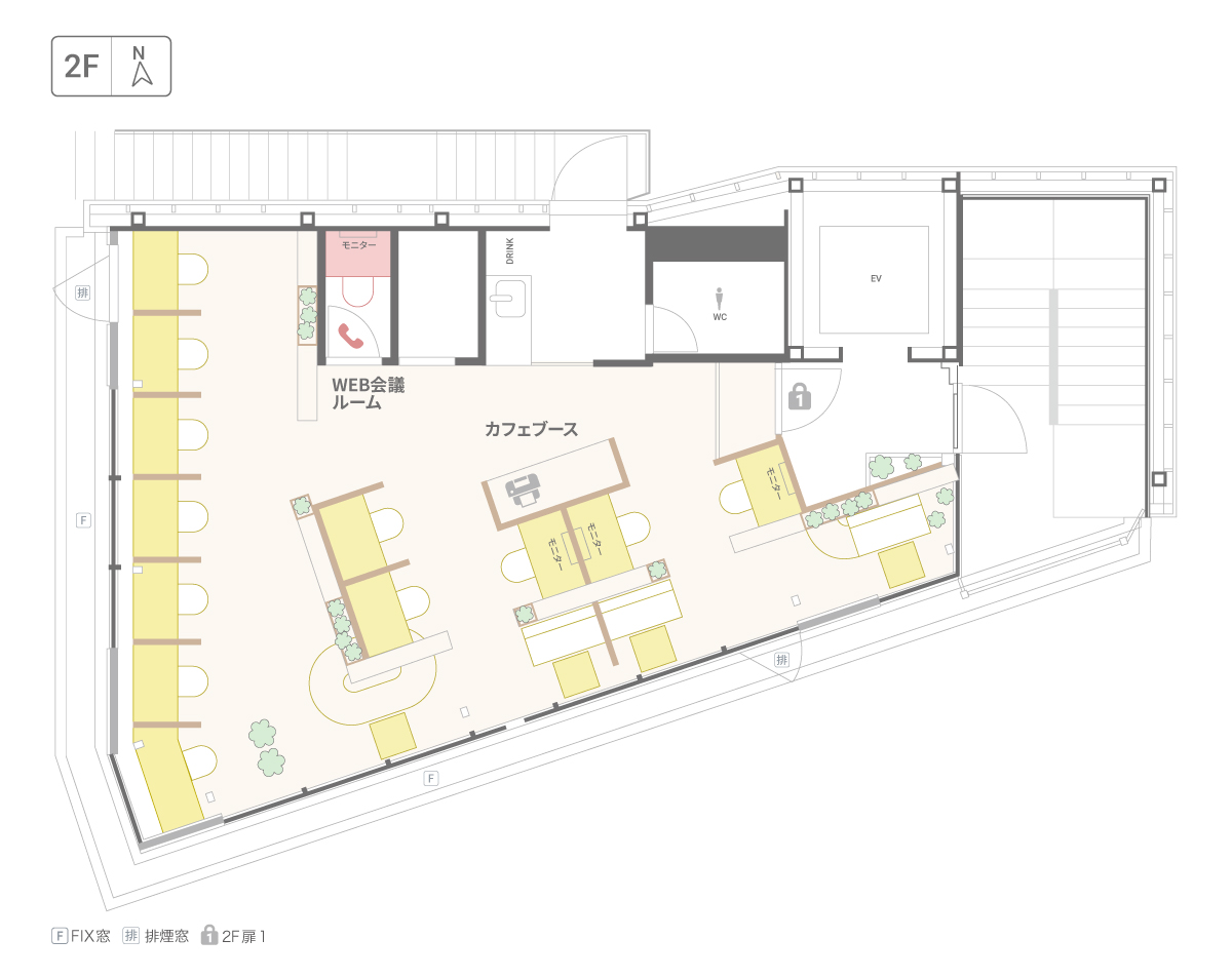
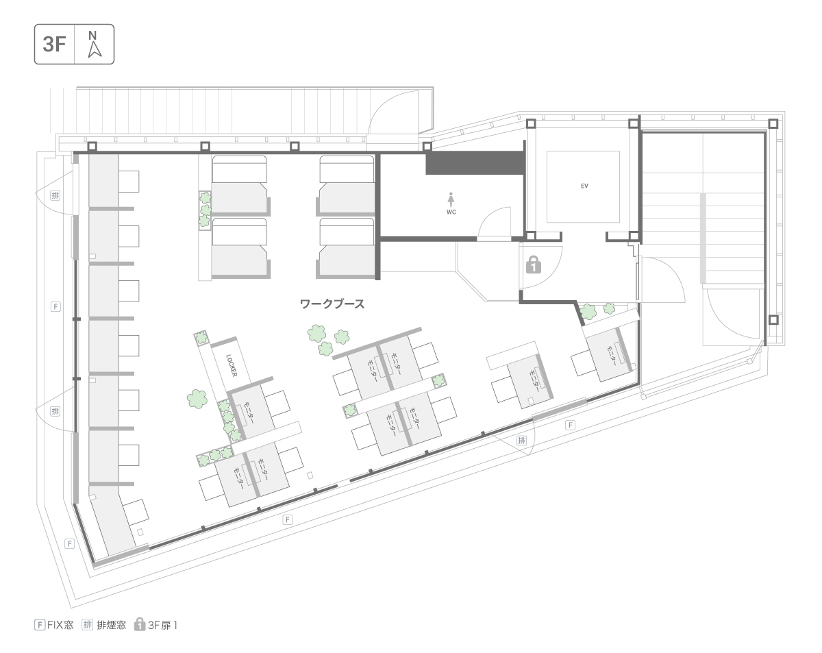
2Fは食事やWEB会議もできる「カフェブース」、3Fはしっかり集中できる「ワークブース」と、用途や気分に合わせてブース・席を選ぶことができます。
2Fには通話・WEB会議専用個室の「WEB会議ルーム ※1」もあり、オンラインミーティング時に周りが気になる方も安心して利用できます。
※1有料・予約制

特徴3.充実した設備やサービス
Wi-Fi、各席電源、無料プリンターやシュレッダーなど、快適に仕事ができる充実した設備を取り揃えています。フリードリンクも用意しており、コーヒーやお茶で作業の合間にリフレッシュもできます。また、ロッカー ※2を契約することで、毎日の荷物を最小限にして通うことができます。
※2 定額プラン契約必須・有料オプション

特徴4.登記可能のため、起業や拠点開設にも
当施設の住所で法人登記 ※3ができるため、自宅を登記場所にすることに不安がある個人事業主や、洗足池に拠点を持ちたい方の一助になります。
※3 定額プラン契約必須・有料オプション
BIZcomfort洗足池 施設概要
住所:東京都大田区南千束1丁目34-6 ARK21洗足池RESERVE 2F・3F
アクセス:東急池上線「洗足池」駅 徒歩2分/東急池上線「長原」駅 徒歩8分
広さ:約142.3㎡(43.06坪)
席数:【コワーキングスペース】オープンスペース36席
利用料金:
全日プラン(24時間365日いつでも使える):14,300円/月
土日祝プラン(土日祝日のみ使える):5,500円/月
全拠点プラン(全国のBIZcomfortが全て使える):22,000円/月
設備:Wi-Fi、フリードリンク、無料プリンター、ロッカー、ポスト、登記可、WEB会議ルーム
HP:https://bizcomfort.jp/tokyo/senzokuike.html
BIZcomfort洗足池 フロアマップ


BIZcomfortについて
近年は働き方が多様化し、フリーランスや副業、スタートアップなど、自分の特技や強みを生かした働き方を選択する人が増加しています。さらに企業側も、働き方改革の一環で、シェアオフィスを用いたテレワークの導入や、子育て・介護世代が自宅近くでも働けるサテライトオフィスを設置する傾向にあり、働くスタイルや意識が大きく変わろうとしています。
そんな背景の中、当社では”「はたらく」をもっと自由に快適に!”をコンセプトに、シェアオフィス「BIZcomfort」を運営。関東・関西を中心に、全国展開に向けて積極的に拡大しています。
東急池上線 沿線のBIZcomfort(一例)
■BIZcomfort旗の台東口 4月1日(水)オープン
「旗の台」駅から徒歩2分のコワーキングスペース。賃貸マンション2Fのテナントとして誘致され、入居者も利用可能です。
住所:東京都品川区旗の台3丁目14番5号 プラネソシエプラス旗の台2F

■BIZcomfort荏原中延
「荏原中延」駅から徒歩1分のコワーキングスペース。BIZcomfort旗の台東口同様、マンション一体型のコワーキングスペースです。
住所:東京都品川区東中延1-9-13 ザ・パークハビオ荏原中延駅前1F

WOOC 会社概要
商号:株式会社WOOC(ウォーク)
代表:代表取締役 清水 裕久
本社所在地:東京都品川区東五反田一丁目 14 番 10 号 三井住友銀行五反田ビル 6 階・8 階
電話:03-5789-3323
設立:2008年9月
資本金:17,510万円(資本準備金8,255万円含む)
年間売上高:17期 6,779,540(千円)
店舗数:レンタルオフィス195拠点・コワーキングスペース197拠点(提携拠点・新規オープン予定を含む)
従業員数:計 214名(社員86名・パート128名)※2026年3月末時点
事業内容:レンタルオフィス・コワーキングスペース事業/住宅サブリース事業/リフォーム・リノベーション事業/不動産管理・仲介事業/不動産売買仲介事業
【WOOCのSDGsについて】(https://www.wooc.co.jp/sustainability.html)
WOOCは、「空間再生」と「シェアオフィス運営」を通じてSDGsの推進に取り組んでいます。シェアオフィス「BIZcomfort」は、都心だけでなく住宅地や郊外にも展開し、誰もがどこでも働ける環境を提供。多様な働き方や労働生産性の向上を支援し、「働きがい」と「経済成長」に貢献しています。

【WOOCの働き方について】
WOOCは、「女性活躍推進法」に基づく厚生労働大臣認定の「えるぼし」において、最高位の3つ星を獲得しました。多様な働き方をサポートする企業として、自社内でも男女問わず互いを尊重し、自分らしく活躍できる環境実現への取り組みを続けてまいります。
