平屋という建築形式を通じて、日々の暮らしの質と居心地を検証する住宅提案モデル

株式会社クリエイト礼文(本社:山形県山形市、代表取締役:大場 友和)は、2026年1月より開始した住宅実験プロジェクト「Case Study House 2026」の新モデルとして 「hiraya」の紹介ページを公開しました。
「Case Study House 2026」は、2026年1月から12月までの1年間を通じ、全20モデルの住宅提案を連続発表していくプロジェクトです。住宅を単なる商品としてではなく、この時代における暮らしや住まいの価値を検証する対象として捉え、一棟ごとに異なるテーマと思想を持つモデルを公開しています。
今回公開された「hiraya」は、そのシリーズの一作として位置づけられる平屋住宅モデルです。
▼ Case Study House 2026
https://createlemon.jp/LP/new_products_2026
▼ hiraya 紹介ページ
https://createlemon.jp/LP/hiraya
■ Case Study House 2026 とは
「Case Study House 2026」は、住宅を“完成された商品”ではなく、“問いを投げかける存在”として再定義する試みです。
社会環境や価値観が大きく変化する現代において、
「この時代に人はどこまで幸福に暮らせるのか」
という根源的な問いを出発点とし、実物大の住宅モデルを通じて検証と提案を行っています。
本プロジェクトでは、2026年12月までの1年間で、全20の住宅モデルを順次公開しています。

■ 新モデル「hiraya」の位置づけ
「hiraya」は、平屋という建築形式を通じて、日々の暮らしの質そのものを見つめ直す住宅提案です。
コンセプトは、
「日々の暮らしを、静かに整える。」
すっきりとした間取りと、やさしい光の入り方。
動線も収納も無理がなく、自然と家が片づく。
家族が集まる場所も、それぞれの時間も、
ちょうどよく心地いい。
「hiraya」は、広さや設備の競争ではなく、暮らしの密度や居心地に焦点を当てたモデルとして設計されています。
コンセプトテーマ:日々の暮らしを、静かに整える平屋住宅提案
特徴:すっきりとした間取りと、やさしい光の入り方が生む“ちょうどいい居心地”
設計思想:動線・採光・収納計画の最適化によって、生活のストレスを抑える空間構成
公開日:2026年2月24日
紹介ページ:https://createlemon.jp/LP/hiraya




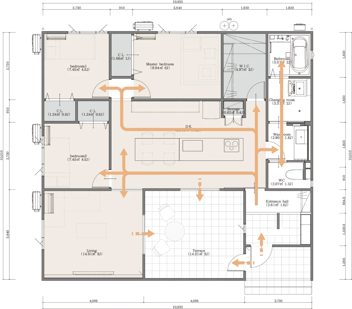
■ 「hiraya」モデルの主な特徴
・暮らしの中心にキッチンを据えた平面構成
・回遊動線による効率的な生活設計
・家族の気配が自然につながる空間計画
・一日のリズムを整える採光設計
・水回り動線の合理化による日常ストレスの軽減
・外観における塗り壁と板張りの素材対比
・過度な装飾を排した静かなファサードデザイン
・象徴的なシンボルツリーによる住環境演出
・室内外の連続性を意識したテラス空間
本モデルは、
「家の中で過ごす時間が、自然と整う住まい」
という思想のもと構築されています。

■住まいの新しい価値観へ
本プロジェクトは単なる住宅紹介ではありません。
物価上昇、ワーク・ライフバランスの変化、エネルギー効率の課題など、生活を取り巻く前提が大きく変わる現代において、住まいの価値そのものを問い直す試みとして設計されています。「建てることの先にあるライフスタイル」を提案するためのシリーズです。
■今後の展望
2026年内に全20モデルを公開予定で、設計思想・生活価値・実践例を通じて、メディア・住宅検討者双方に新たな気づきを届けます。今後は公開モデルごとに設計者インタビュー、暮らし方提案、実例ストーリーなど多角的な情報発信を予定しています。
■ 会社概要
会社名:株式会社クリエイト礼文
所在地:山形県山形市南原町二丁目7-39
事業内容:住宅・不動産・地域づくり関連事業
URL:https://createlemon.jp/
■ 問い合わせ先
株式会社クリエイト礼文
広報担当
TEL:023-665-5676
Email:pr@createlemon.jp